wolsztyński, Wolsztyn, Starostrzelecka
                                DZIAŁKA Z POTENCJAŁEM ZABUDOWY MIESZKANIOWO-USŁUGOWEJ
Zapraszam do zapoznania się z ofertą sprzedaży działki położonej w pobliżu ścisłego centrum miasta, w otoczeniu istniejącej zabudowy mieszkaniowej i usługowej, a także w bezpośrednim sąsiedztwie powiatowego szpitala.
 POŁOŻENIE NIERUCHOMOŚCI 
Działka zlokalizowana jest w doskonale skomunikowanej części miasta w sąsiedztwie domów jednorodzinnych, punktów usługowych oraz terenów rekreacyjnych. W bliskiej odległości znajdują się: szpital, przychodnia, park oraz jezioro idealne miejsce do spacerów i wypoczynku. 
OPIS 
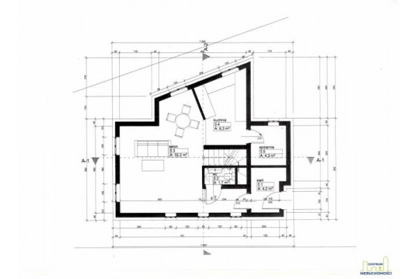
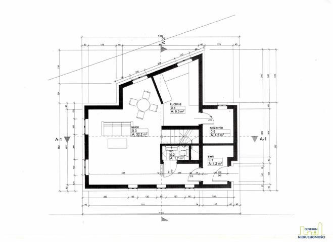
Nieruchomość doskonale sprawdzi się pod zabudowę jednorodzinną z funkcją usługową. Dla działki wydano warunki zabudowy umożliwiające realizację inwestycji o takim charakterze. W galerii dostępna jest koncepcja budynku oraz rzut kondygnacji, które mogą stanowić inspirację dla przyszłego inwestora.
MEDIA 
Pełne uzbrojenie terenu: prąd, woda, gaz oraz kanalizacja wszystkie media dostępne w drodze przy działce. 
ATUTY NIERUCHOMOŚCI 
- Doskonała lokalizacja!, 
- Możliwość realizacji inwestycji o różnym charakterze szczególnie usług medycznych, 
-Pełne uzbrojenie terenu, 
- Jedna z ostatnich tak atrakcyjnych działek w Wolsztynie!
- Koncepcja zabudowy wyciskająca każdy metr działki,
Masz pytania? Chcesz umówić się na prezentację? Zadzwoń chętnie pomogę! Mam na imię Regina i od lat pomagam spełniać marzenia moich klientów.
                            
Treść niniejszego ogłoszenia nie stanowi oferty handlowej w rozumieniu Kodeksu Cywilnego.
Oferta wysłana z programu IMO dla pośredników.
 
                                     
                                                         
                                                         
                                                         
                                                         
                                                         
                                                         
                                                         
                                                        